广州喝茶工作室,同城空降服务同城附近喝茶网 ,qq官方月抛群入口,全国伴游大圈招聘全球高端私人定制社交平台

首页>要闻 要闻

申购共有产权房,你可花160万住320万的房子

2018年07月28日 07:24 | 来源:中国新闻网
分享到: 

资料图:图为北京市海淀区房管局办事大厅民众在等候办理业务。<a target='_blank' href='http://www.chinanews.com/'>中新社</a>记者 苏丹 摄

资料图:图为北京市海淀区房管局办事大厅民众在等候办理业务。中新社记者 苏丹 摄

中新网客户端北京7月28日电 (记者 邱宇)共有产权房,顾名思义,就是购房者和政府共同拥有房子的产权。

中新网记者梳理发现,目前,北京、上海、南京、福州、烟台等地都有这种房子,其他城市也在跟进。这些城市共有产权房的共同特点是:产权共有、价格低、照顾无房者、限售。

近期,北京接连出台针对共有产权房的一些政策,有几个共有产权房项目正在网申。下面就以北京为例,看一下共有产权房的优势和弊端。

北京正在网申的共有产权房。图片来源:北京住建委官网

北京正在网申的共有产权房。图片来源:北京住建委官网

花160万住320万的房子

举个例子,一套80平米的共有产权房,购房者可以购买50%的产权,售价是2万元/平米。这样,购房者花160万买了这套房子,政府持有的部分也值160万,它的市场价是320万。

也就是说,可以花160万住320万的房子,拥有一半的产权。

比普通商品房便宜很

共有产权房到底有多便宜呢?

以7月26日开始网申的北京大兴区绿地·兴景苑共有产权住房为例,根据大兴区住建委官网信息,其均价是1.75万元/平米。而相邻的商品房海珀云翡,链家APP数据显示,均价高达7.5万元。

假设上述两个项目的房屋面积都是80平米,那么购买海珀云翡需要花600万,而购买绿地·兴景苑共有产权房只需花140万,便宜460万!

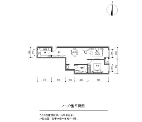
不过,兴景苑的购房者只拥有40%的产权,而且据了解,其户型没有一些普通商品房那么好。

绿地·兴景苑户型图之一。来源:北京市大兴区住建委官网。

绿地·兴景苑户型图之一。来源:北京市大兴区住建委官网。

商贷最低首付30%

共有产权房的首付比例比普通商品房低一点。近日,央行营业管理部联合北京市四部门下发通知:

如果共有产权房是首套房,则最低首付比例是30%;如果不是,那么最低首付比例是60%。

这样的话,购买一套200万元的共有产权房,至少要付60万首付。

上面是指商贷的情况,记者了解到,如果是公积金贷款,共有产权房的最低首付比例是20%。买200万元的共有产权房,至少要付40万首付。

编辑:周佳佳

01 02

关键词:申购共有产权房

更多

更多